東京都小平市美園町3丁目戸建 東京都小平市美園町3丁目|4,880万円の新築一戸建て|リライズホーム
| 価格 | 4,880万円 ![]() |
||||
|---|---|---|---|---|---|
| 所在地 | 東京都小平市美園町3丁目
この地域周辺の物件を見る |
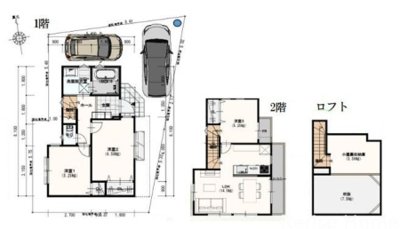
土地面積 | 91.89m² (27.79坪) | 建物面積 | 72.9m2 |
| 築年月 | 2026年7月築 | 間取り | 3SLDK (洋室5.3/洋室6.6/洋室5.3/LDK14.5/S5.5) | ||
| 交通 |
西武新宿線 小平 徒歩10分
|
||||
| 特徴 |
|
|---|---|
| セールスコメント | この地で夢のマイホームを実現しませんか!是非一度現地をご覧くださいませ。ご連絡をお待ちしております。 スーパー他生活施設までアクセスしやすい便利なエリア◎ お仕事で遅くなった日や、急にお弁当が要ると言われたときなどに頼りになります。 |
| 採光面 | - | 構造/階数 | 木造/地上2階建 |
|---|---|---|---|
| 建ぺい率 | 60(%) | 容積率 | 200(%) |
| 駐車場 | - | 現況/引渡し | -/相談 |
| 土地権利 | 所有権 | 私道負担面積 | - |
| 接道状況 | 接道: 北 8.6m 私道 | 用途地域 |
第一種中高層住居専用地域
|
| セットバック | - | 法令上の制限 | 第一種高度地区。日影規制。 |
| 地目 | 宅地 | 地勢 | |
| 建築確認番号 | 第25UDI1C建07449号 | 都市計画 | 市街化区域 |
| 取引態様 | 仲介 | ||
| 情報更新日 | 2026年03月09日 | 次回更新日 | 2026年03月23日 |
| 小学校区 | 小平市立小平第七小学校 (東京都小平市) 東京都小平市立小平第七小学校学区の他の物件を見る |
中学校区 | 小平第六中学校 (東京都小平市) 東京都小平市立小平第六中学校学区の他の物件を見る |
|---|
| 価格 | 万円 | ||
|---|---|---|---|
| 年利率 | % |
||
| ボーナス払い | 返済年数 | ||
| 頭金 | 直接入力する | 万円 | |

毎月のご返済額 |
ボーナス(×年2回) |
物件価格4,880万円 |
※「ホームページを見た」と
お伝え下さい。
【物件番号:RHS-B02706-010984】
お知らせ
News
大きな買い物である不動産購入を、知識豊富な当社スタッフが適切にサポート、アドバイスいたします。まずはお気軽にお問い合わせください。