リライズホーム > 西東京市新町の物件
家から184mのところには沖縄徳洲会 武蔵野徳洲会病院があります。トイレが2ヶ所にあるので複数人でも快適に暮らせます。築9年の設備が充実した物件となっています。建物面積78.05㎡でご家族と過ごすのにも問題のない広さです。信頼と実績を誇るリライズホーム 武蔵野店でなら、きっとお客様にも満足していただける不動産をご紹介することが可能です。











(※元利均等方式 金利5.00%まで ※返済年数5~50年まで入力できます)
(※ボーナスは年2回で計算しています。1000万円まで入力できます)
(※物件購入時、その他諸費用が発生する場合がございます)
| 所在地 | 東京都西東京市新町5丁目 | ||
|---|---|---|---|
| 交通 | |||
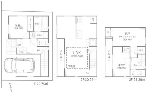
| 間取り/詳細 |
2LDK+1S(納戸)/ S 1室 |
建物面積(坪数) | 78.05㎡(23.61坪) |
| 価格 | 4,699万円 | ||
| 駐車場/月額料金 | 有(1台)/0円 | ||
| 土地の敷金/保証金 | -/- | 借地料/借地期間 | -/- |
| 土地権利 | 所有権 | 土地面積(坪数) | 51.63㎡(15.61坪) |
| 傾斜地部分面積 | - | 路地状敷地 | - |
| 私道負担面積/セットバック | -/無 | 高圧線下面積 | - |
| 地目/地勢 | 宅地/- | 接道状況 | -(西 7.0m) |
| 建ぺい率/容積率 | 60%/200% | 用途地域 | 第一種中高層住居専用 |
| 都市計画 | - | 種別/構造 | 中古一戸建/木造 |
| 階建 | 2階建 | 築年月(築年数) | 2016年 9月 (築9年) |
| 総区画数/販売区画数 | -/- | 向き | - |
| 現況 | 空家 | その他の法令上の制限 | - |
| 取引態様/引渡時期 | 仲介/相談 | 建築確認番号 | - |
| 物件番号 | 100509681 | 取引条件の有効期限 | 2026年03月01日 |
| 設備条件 |
|
||
| 備考 | こちらは中古の戸建てです。建物面積78.05平米なので、使い勝手がいいです。都市近郊ですので、通勤・通学にも便利です。足元から暖まる床暖房付きです。不動産をお探しなら、当社にお任せください。お住まいが変われば、生活が変わります。当社では、よりよい生活を送るためのお手伝いを致します。ぜひご利用くださいませ。 | ||
| 取扱会社 |
|
||
| QRコード |
このQRコードを読み取ることで、スマホでも物件情報を確認できます。 |
||
※地図上に表示される物件の位置は付近住所に所在することを表すものであり、実際の物件所在地とは異なる場合がございます。