リライズホーム > リライズホーム株式会社 武蔵野店のスタッフブログ記事一覧 > 2022年11月25日(金)

2022年11月25日(金)

≪ 前へ|2022年11月23日(水)   記事一覧   2022年11月27日(日)|次へ ≫

2022年11月25日(金)

カテゴリ:スタッフブログ

こんにちは!小平店の栗山です(^^)/

先日健康診断を受診してきました☆…年々体重が落ちにくくなってきますね

増えていた体重には目を背けて、クリスマスや年末年始の美味しい料理を

楽しみに日々過ごしたいです(;'∀')


さて今回はついに完成した限定2棟の物件をご紹介します!

【東村山市秋津町2丁目 全2棟】

☆西武池袋線「秋津」駅徒歩15分☆池袋駅まで1本♪

☆ついに完成!当日内覧可☆
【駐車2台可×4LDK】
20帖超えのゆとりある家族団らんスペース◎
家族のコミュニケーションがより増える住宅で新生活を始めませんか♪

【Planning Point】
◆☆価格変更しました☆200万円ダウン!!
◆【駐車2台可】お買い物用とレジャー用で所有しても◎
◆【パントリー付き】買い置きや非常食品などストックできますね♪
◆【リビングにスタディカウンター付き】リビング学習は集中力UP◎
◆【ユニットバスはエコベンチ仕様】節水効果も◎

【周辺環境】
◇コープ…徒歩5分
◇セブンイレブン…徒歩2分


1号棟Exterior
方角や時間帯の違いで日当たりがどう変化するか、周辺の道路や学校、お店や道路 の音など、
家の中で静かに過ごせるかチェックできます♪



Living &Dining
日中はカーテンを開けて自然な光を取り込みリラックスして過ごしたいですね
住環境や日当たりなど現地でしかわからないこともたくさんあります。是非一度ご見学ください


Living &Dining
今流行りのリビングイン階段です♪もちろんここままでもいいですし、
熱効率を気にされる方はアコーディオンカーテンをつければ暖かい空気が二階に逃げることも防げます




Kitchen
手洗いでは落ちない汚れも高温・高圧ですっきり♪ビルトイン食洗機が設置されており、
料理の後片付けが楽になるので、忙しい毎日の中でも自分の時間が取れそうですね




Bedroom
居室は大きなベットを配置してもゆとりがあり、毎日の睡眠もぐっすり眠れる快適な空間です


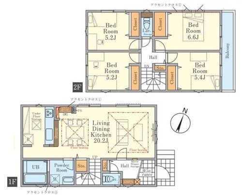
1号棟の間取りです♪
ママ目線で設計された家事効率の良い間取りです!


現地にて発見出来る事は、メリット、デメリット面も含めて包み隠さずお話しいたします!


今週の土日もご見学できますので、ご興味あるかたは


是非小平店(042-312-1895)までご連絡くださいませ♪


それではまた来週に~♪


≪ 前へ|2022年11月23日(水)   記事一覧   2022年11月27日(日)|次へ ≫

 おすすめ物件


東久留米市滝山2丁目の新築一戸建

東久留米市滝山2丁目の新築一戸建の画像

価格
3,680万円
種別
新築一戸建
住所
東京都東久留米市滝山2丁目
交通
小平駅
徒歩40分

調布市菊野台3丁目の新築一戸建

調布市菊野台3丁目の新築一戸建の画像

価格
6,590万円
種別
新築一戸建
住所
東京都調布市菊野台3丁目
交通
柴崎駅
徒歩9分

調布市飛田給2丁目の新築一戸建

調布市飛田給2丁目の新築一戸建の画像

価格
8,280万円
種別
新築一戸建
住所
東京都調布市飛田給2丁目
交通
飛田給駅
徒歩3分

杉並区浜田山3丁目の中古マンション

杉並区浜田山3丁目の中古マンションの画像

価格
9,999万円
種別
中古マンション
住所
東京都杉並区浜田山3丁目
交通
浜田山駅
徒歩2分

トップへ戻る